Sanierung Friedenskirche in Starnberg

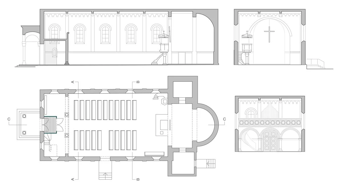
Bei dem Projekt handelt es sich um die Sanierung der denkmalgeschützten Friedenskirche in Starnberg. Die Sanierung umfasste sowohl die raumbildenden Oberflächen wie auch die Möblierung.

Das Farbkonzept wurde auf Basis einer detaillierten Bestandsuntersuchung und Recherchearbeit entwickelt. Die ursprüngliche Anordnung des Gestühls wurde wieder aufgenommen, das Kreuz mittig im Chor plaziert. Pünktlich zum Lutherjahr 2017 erstrahlt die Kirche nun in neuem Glanz.

Fertigstellung:   2017

Bauherr:

Evang.-Luth. Kirchengemeinde

Maßnahme:

Sanierung Innenraum

Zurück
Zurück

Penthouse und energetische Sanierung

Weiter
Weiter

Kirche mit Gemeindehaus Realisierungswettbewerb